Nebytové prostory k pronájmu v Brně
Aktuální pronájmy kanceláří, skladů a showroomů
Jsme pronajímatelé skladovacích a kancelářských prostor
- Akciová společnost S.P.M.B. a.s. vznikla k 30. 4. 1992 jako právní nástupce Stavebního podniku města Brna a navazuje na více než šedesátiletou tradici, kdy historie předchůdců sahá až do roku 1949.
- Společnost S.P.M.B. a.s. je součástí koncernu, kdy řídící osobou je firma PROSPERITA holding, a.s., IČ 25820192, oznámení o existenci koncernu.
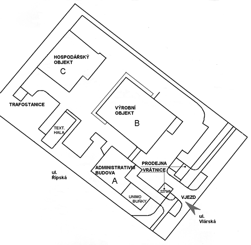
Hlavní činností je pronájem vlastních nebytových prostor v obchodních areálech na ulici Řípská a Vlárská v Brně-Slatině, které mají doslova dokonalou dopravní obslužnost a společnost je udržuje trvalými opravami, modernizací a rekonstrukcemi na nadstandardní úrovni včetně venkovních úprav s maximální snahou vyhovět potřebám nájemců a jejich zákazníků.
Poloha areálu je v bezprostřední blízkosti dálnice D1 (exit 201), celnice, železniční vlečky, 1,5 km od letiště a přitom 7 km od centra města Brna.
Perspektivnost možné spolupráce je umocněna téměř čtvrtmiliardovým základním kapitálem a skutečností, že akcionář TOMA, a.s. vlastní 100 % akcií.
Kde pronajímáme nebytové prostory v Brně?
Vlárská 22
Nebytové prostory Vlárská 22, Brno
Podlaží: 5. patro
Rozměr: 35 m2
Umístění: Budova A
Kanceláře s příslušenstvím
Podlaží: 4. patro
Rozměr: 104 m2
Umístění: Budova A
Rozměr: 280 m2
Umístění: Budova B
Skladové prostory
Podlaží: 1. patro s výtahem 5t
Rozměr: 310 m2
Umístění: Budova B

Řípská 20a
Nebytové prostory Řípská 20a, Brno
Podlaží: 2.patro
Rozměr: plocha 357 m2
Umístění: Budova I
Podlaží: 1.patro
Rozměr: plocha 87 m2
Umístění: Budova E
Podlaží: přízemí
Rozměr: plocha 65 m2
Umístění: Budova E
Podlaží: přízemí
Rozměr: plocha 65 m2
Umístění: Budova C
Rozměr: plocha 80m2
Umístění: Budova H – 1.patro


Kontakty S.P.M.B. a.s.
Kontakt
+420 545 218 636, nevrtal@spmb.cz
Irena Králová – sekretariát:
+420 545 218 636, spmb@spmb.cz
František Forman – vedoucí správy areálů:
+420 545 218 123, forman@spmb.cz
S.P.M.B. a.s.
Řípská 1153/20a, 627 00 Brno
Společnost zapsaná: Krajský soud v Brně,
oddíl B, vložka č.768.
IČ: 46347178, DIČ: CZ46347178
č.ú.5014035258/5500